Bosschastraat 2

3514 HN Utrecht

€ 669.000,- k.k.
Alle foto's

Kenmerken

  • Vraagprijs€ 669.000,- k.k.
  • StatusVerkocht
  • TypeEindwoning
  • Woonoppervlakte107 m2
  • Perceel oppervlakte83 m2
  • Bouwjaar1926
  • Inhoud473 m3
  • TuintypenGeen tuin
  • Totaal aantal garages1
  • VoorzieningenAirconditioning, Zonnepanelen
  • Soorten verwarmingCV ketel
  • LiggingenAan rustige weg, In woonwijk

Omschrijving

Karakter, ruimte én comfort in de stad
Droom jij van een sfeervolle woning met kleine garage, authentieke details, drie slaapkamers én fijne buitenruimtes midden in Utrecht? Dan is Bosschastraat 2 precies wat je zoekt. Deze charmante eindwoning uit 1926 en biedt alles wat je nodig hebt: een lichte leefruimte, twee buitenplekken, een eigen garage ( klein) en volop comfort zoals airco en zonnepanelen. Ideaal voor gezinnen die op zoek zijn naar ruimte én een centrale ligging.

Waarom je hier wilt wonen
Bij binnenkomst voel je het direct: dit is zo’n huis met karakter. Glas-in-loodramen, houten details en een warme sfeer geven dit huis zijn ziel. Tegelijkertijd is er deels gemoderniseerd, met onder meer een stijlvolle keuken, airco op de slaapkamers, vloerverwarming in de badkamer en een heerlijk dakterras waar je zomers lang kunt tafelen. De ligging aan een rustige straat in de populaire wijk Tuinwijk maakt het extra aantrekkelijk.

Indeling
Begane grond
Je komt binnen in een ruime hal met trapopgang, toilet en handige bergkast. Vanuit de hal kom je in de moderne keuken met 5-pits gaskookplaat, oven en vaatwasser. De doorzonwoonkamer voelt licht en ruim dankzij grote raampartijen en een open verbinding met de eetkamer. Vanuit hier stap je zó de patio in: een groene, beschutte buitenruimte. De patio biedt toegang tot de garage (klein), ideaal voor fietsen, opslag of als hobbyruimte.

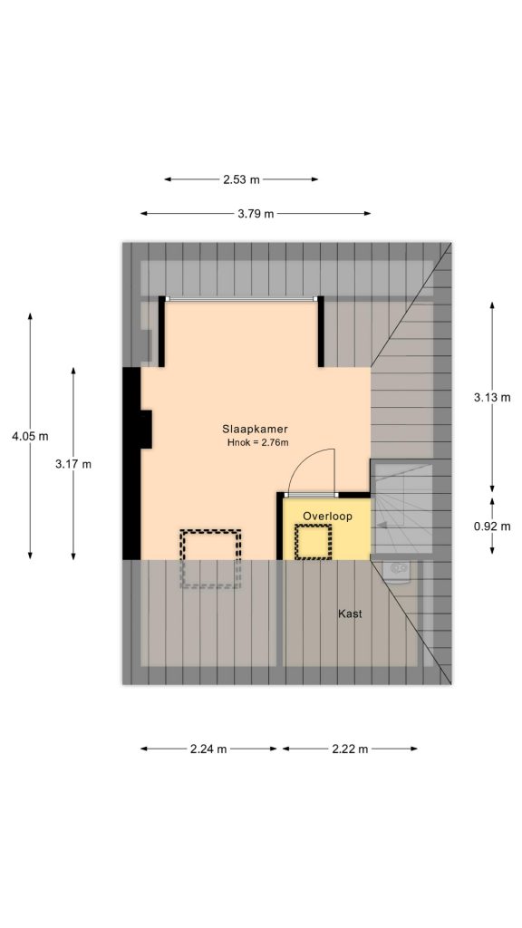
Eerste verdieping
Aan de voor en achterzijde liggen twee ruime slaapkamers. De badkamer is voorzien van een ligbad, tweede toilet, wastafel én elektrische vloerverwarming. Ook is er een aparte wasruimte aanwezig, handig! Via de wasruimte heb je toegang tot het gezellige dakterras met genoeg ruimte voor een loungeset of eettafel.

Tweede verdieping
De zolder is ingericht als derde slaapkamer en voorzien van een dakkapel aan de achterzijde. Dankzij de slimme indeling en ingebouwde kastruimte is dit een perfecte werkplek, logeerkamer of tienerkamer.

Bijzonderheden

• Clausule: Mondelinge afspraak met buren over inrichting dakterras
• Comfort: Airco op twee slaapkamers, elektrische vloerverwarming in de badkamer
• Zonnepanelen: 8 stuks (2022), met app (Enlighten), opbrengst ± 3000 kWh per jaar
• Dakkapel: Achterzijde zolderverdieping
• Garage : Intern bereikbaar, voorzien van elektra

Nieuwsgierig geworden?
Kom dit karakteristieke huis met eigen ogen bekijken. Maak snel een afspraak voor een bezichtiging we laten je deze unieke woning aan de Bosschastraat 2 met plezier zien!

Wijkinformatie – Tuinwijk-Oost
Tuinwijk-Oost is een geliefde, groene buurt in het noordoosten van Utrecht, waar rust en levendigheid op een natuurlijke manier samenkomen. De wijk ademt een gemoedelijke sfeer met zijn karakteristieke straten, volwassen bomen en een duidelijke sociale samenhang. Het dagelijks leven speelt zich af rondom het Willem van Noortplein waar je o.a. een supermarkt en drogist vindt en gezellige horeca gelegenheden.
Voor kinderen is er volop ruimte om te spelen op pleintjes en veldjes verspreid door de wijk, terwijl scholen en kinderopvanglocaties zich op loop- of fietsafstand bevinden ideaal voor gezinnen die gemak en overzicht zoeken. In het nabijgelegen Griftpark dat op 80 meter afstand ligt is altijd iets te beleven, van ontspannen in het gras tot actief sporten of dieren kijken in de kinderboerderij. Station Utrecht Overvecht is het dichtstbijzijnde NS-station en biedt vlotte verbindingen met de regio; ook Utrecht Centraal is goed bereikbaar per fiets of openbaar vervoer. De wijk zelf voelt overzichtelijk en vriendelijk aan, met een mix van jonge gezinnen en bewoners die hier al jarenlang met plezier wonen. Een buurt waar de stad nooit ver weg is, maar waar je nog wel de ruimte hebt om op adem te komen.
Een fijne plek om thuis te komen na een dag in de stad.

Plattegronden

Kaart

Street View