Vogelsanglaan 25

3571 ZM Utrecht

€ 595.000,- k.k.
Alle foto's

Kenmerken

  • Vraagprijs€ 595.000,- k.k.
  • StatusBeschikbaar
  • TypeTussenwoning
  • Woonoppervlakte106 m2
  • Perceel oppervlakte157 m2
  • Bouwjaar1968
  • Inhoud360 m3
  • TuintypenAchtertuin, Voortuin
  • PositieOost
  • VoorzieningenMechanische ventilatie, TV kabel, Buitenzonwering, Schuifpui
  • Soorten verwarmingCV ketel
  • LiggingenIn woonwijk

Omschrijving

Voel je direct thuis in deze lichte en ruime tussenwoning in Tuindorp Oost met energielabel C.

Dankzij het enorme raamoppervlakte is het binnen de hele dag door prettig licht. Met 106 m² woonoppervlakte, ruime woonkamer met open keuken, drie slaapkamers, een moderne badkamer en een ruime tuin heb je hier alles in huis voor comfortabel wonen. En extra fijn. Je kunt hier ook nog doorgroeien, nu of later als de behoefte er is.

De woning biedt namelijk mooie uitbreidingsmogelijkheden. Denk aan een opbouw voor extra slaapkamers, én een uitbouw aan de achterzijde om de woonkamer en keuken nog groter te maken. Ideaal als je nu al meer ruimte wilt, of juist vooruit wilt plannen voor de toekomst.

Indeling

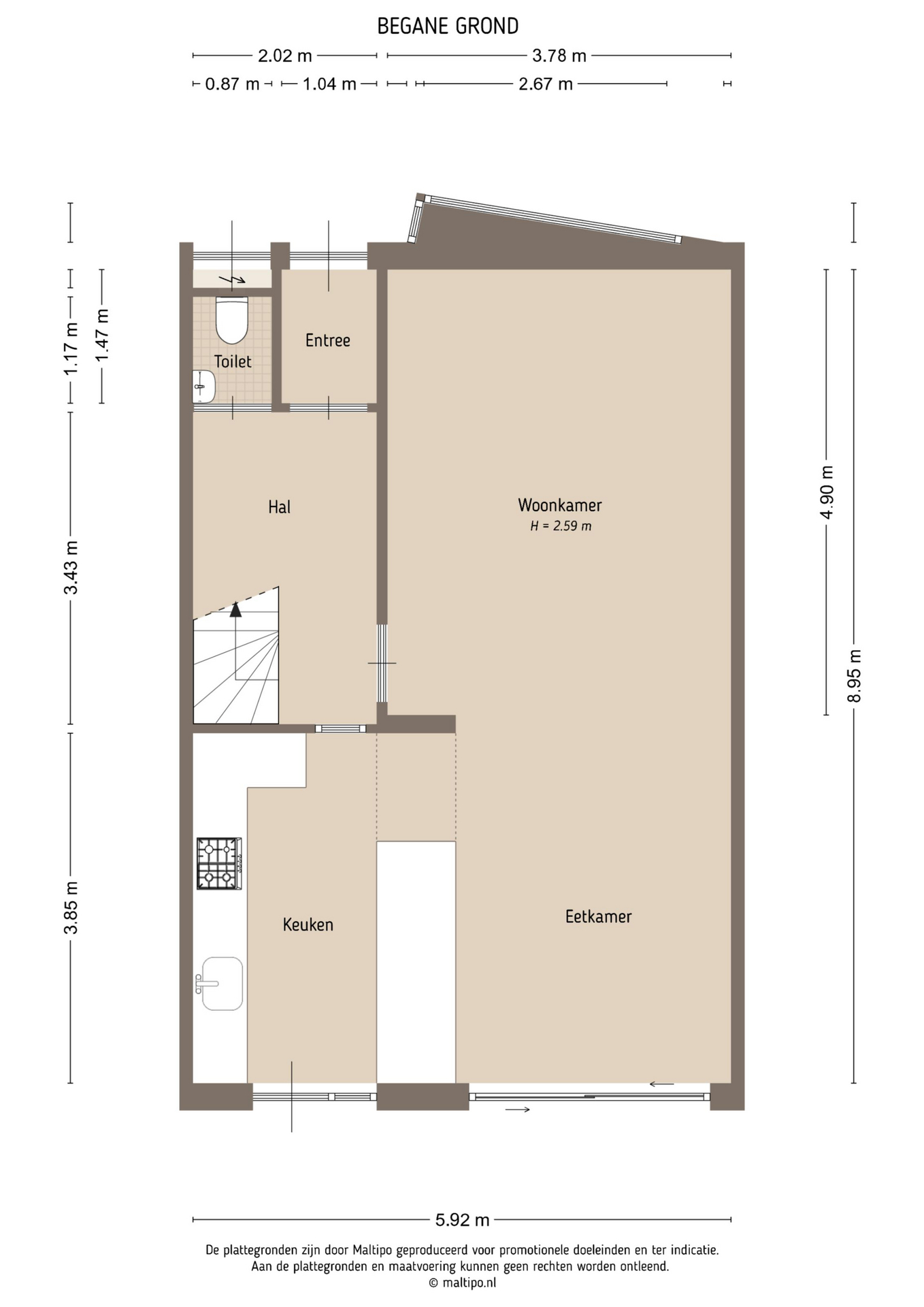
Begane grond
Je komt binnen via de entree met toegang tot het toilet. Vanuit de hal loop je door naar de woonkamer. Dit is een fijne leefruimte waar je moeiteloos een ruime zithoek en een grote eettafel neerzet. Door de grote raampartijen voelt alles open en licht. Een heerlijke plek om te ontspannen of om zomers lang te tafelen met vrienden. Vanuit de woonkamer bereik je de tuin via een schuifpui, waardoor binnen en buiten heel natuurlijk in elkaar overlopen.

De open keuken ligt aan de achterzijde en is praktisch ingericht. Je beschikt hier over een oven, gaskookplaat, afzuigkap en vaatwasser. Vanuit de keuken loop je via een deur zo de tuin in.

Tuin
Zodra je de tuin in stapt, merk je direct hoeveel ruimte je hier hebt. De achtertuin is royaal en biedt volop plek voor een loungehoek, een eettafel en groen om van te genieten. Met een kop koffie in de ochtendzon of juist lange avonden buiten. Hier kan het allemaal. Achterin de tuin staat een berging, ideaal voor fietsen en tuinspullen. En extra praktisch. Er is een achterom aanwezig.

Eerste verdieping

Op de eerste verdieping vind je de overloop met toegang tot drie slaapkamers. De kamers zijn prettig van formaat en flexibel in te delen als kinderkamer, werkkamer of hobbyruimte.

De moderne badkamer is compleet en verzorgd uitgevoerd met een inloopdouche, wastafel, ligbad en toilet. Een fijne plek om de dag rustig te starten en ontspannen af te sluiten.

Bijzonderheden

• Vrijwel geheel voorzien van kunststof kozijnen
• Uitbreidingsmogelijkheden. Opbouw én uitbouw van de woonkamer mogelijk, nu of in de toekomst als de behoefte er is
• Zonnescherm aan de achtergevel
• Snelle oplevering mogelijk

Zie jij jezelf hier al wonen in Tuindorp Oost? Plan snel een bezichtiging. We laten je Vogelzanglaan 25 graag in het echt ervaren!

Wijkinformatie – Tuindorp?Oost

Tuindorp-Oost is een rustige, groene buurt in Utrecht Noordoost, met een overzichtelijke opzet en veel ruimte voor gezinnen. Brede straten, volgroeide bomen en speelplekken geven de wijk een ontspannen sfeer, terwijl de bebouwing een verzorgd en samenhangend geheel vormt. In de directe omgeving zijn scholen en dagelijkse voorzieningen aanwezig, waaronder een supermarkt en enkele lokale winkels. Ook sportvelden en wandelroutes liggen op korte afstand, wat het buitenleven aantrekkelijk maakt voor jong en oud. De wijk heeft een praktische ligging: het nabijgelegen station Utrecht Overvecht zorgt voor een goede verbinding met andere delen van de stad en daarbuiten. Daarnaast is ook Utrecht Centraal goed bereikbaar, wat de wijk aantrekkelijk maakt voor wie werkt of studeert in de stad. Hier woon je in een buurt waar rust, ruimte en bereikbaarheid mooi samenkomen.

Plattegronden

Kaart

Street View