Van Lieflandlaan 71

3571 AA Utrecht

€ 695.000,- k.k.
Alle foto's

Kenmerken

  • Vraagprijs€ 695.000,- k.k.
  • StatusOnder bod
  • TypeEindwoning
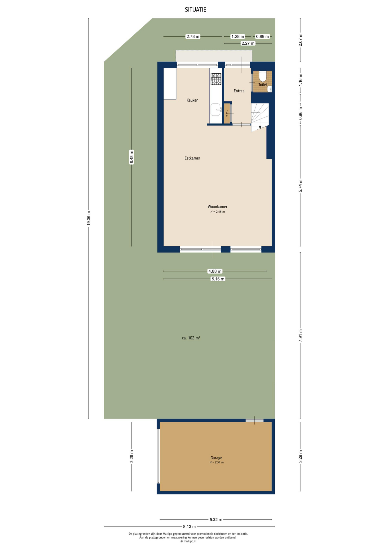
  • Woonoppervlakte132 m2
  • Perceel oppervlakte180 m2
  • Bouwjaar1987
  • Inhoud449 m3
  • TuintypenAchtertuin, Voortuin, Zijtuin, Tuin rondom
  • PositieZuid
  • Totaal aantal garages1
  • VoorzieningenBuitenzonwering, Glasvezel kabel, Zonnepanelen
  • Soorten verwarmingCV ketel
  • LiggingenAan rustige weg, In woonwijk

Omschrijving

Geniet van de zon in je eigen tuin met achterom op het zuiden en garage, terwijl je toch in no time in het bruisende centrum staat. Deze lichte hoekwoning in Tuindorp West combineert ruimte, comfort en een rustige ligging met de stad om de hoek. Binnen 7 minuten fietsen sta je al op het Neude. Thuis is het juist heerlijk rustig, met veel groen en volop privacy.

De woning uit 1987 heeft 4 slaapkamers en biedt veel leefruimte. Beneden zorgt de strakke gietvloer samen met vloerverwarming voor een moderne uitstraling én extra wooncomfort. Door de hoekligging komt er lekker veel daglicht binnen en voelt het huis ruim en open aan. Ook fijn: de woning is voorzien van 12 zonnepanelen, vloer, muur en dakisolatie, wat bijdraagt aan veel comfort.

De tuin ligt op het zuiden, dus je hebt hier de hele dag zon. Zomers lang tafelen in je eigen achtertuin wordt hier heel normaal. En met de achterom is de tuin ook praktisch bereikbaar. Deze tuin heeft een deur naar eigen garage.

Indeling

Je komt binnen in de entree met toegang tot het toilet met fonteintje. Daarna loop je door naar de royale woonkamer met eetgedeelte. De grote raampartijen zorgen voor een fijne lichtinval en maken dit een plek waar je je direct thuis voelt. Of je nu een rustige avond op de bank wilt of gezellig met vrienden aan tafel zit, hier kan het allemaal. Een fijne woonruimte waar je elke dag met plezier thuiskomt.

De open keuken is strak en praktisch en voorzien van een 4 pits gasfornuis, afzuigkap, combi oven magnetron en vaatwasser. Veel werkruimte en een fijne opstelling maken dit een heerlijke plek om te koken en tegelijk contact te houden met de woonkamer.

Via de achterdeur stap je zo de tuin in. De tuin ligt op het zuiden, dus je hebt hier de hele dag zon. Met een kop koffie in de ochtendzon of juist later op de dag lekker loungen met een boek. Het groen rondom zorgt voor een prettige, rustige sfeer en genoeg privacy. Extra praktisch: er is een achterom, ideaal voor fietsen of als je met boodschappen net even makkelijk achterom wilt. Ook beschikt deze woning over een garage. De zij- en voortuin zijn in 2021 door een tuinarchitect ontworpen en aangelegd en o.a. plaats biedt om meerdere fietsen te stallen.

Op de eerste verdieping vind je twee slaapkamers, allemaal met veel daglicht. Ideaal als kinderkamer, werkkamer of logeerkamer. De ruime kamer met de speelse ronde opening is samengevoegd tot een grotere slaapkamer. Wil je liever weer 3 slaapkamers op deze verdieping? Dan kun je dit eenvoudig terugbrengen naar de oorspronkelijke indeling.
De badkamer is netjes en beschikt over een inloopdouche en een wastafelmeubel. Extra fijn is het separate toilet op deze verdieping. Dat maakt de ochtendroutine net even makkelijker.

De tweede verdieping biedt een ruime slaapkamer met veel mogelijkheden, bijvoorbeeld als master bedroom, hobbyruimte of een fijne werkplek. De andere slaapkamer biedt extra bergruimte en je vindt hier een handige pantry met warm en koud water én de wasmachineaansluiting. Praktisch, zeker als je de was graag uit het zicht houdt.

Extra informatie
• Oplevering in overleg
• 12 zonnepanelen
• Garage met elektra en water
• Erfpacht Eeuwigdurend afgekocht

Nieuwsgierig geworden? Plan snel een bezichtiging. We laten je graag ervaren hoe licht, ruim en zonnig Van Lieflandlaan 71 in het echt aanvoelt.

Wijkinformatie – Tuindorp en Van Lieflandlaan-West

Tuindorp en Van Lieflandlaan-West ligt in de Utrechtse wijk Noordoost en voelt als een rustige stadsbuurt met veel dagelijkse levendigheid om de hoek. In de straten zie je een mix van herkenbare Tuindorpse sfeer en ruimere woonblokken, met groenstroken en brede trottoirs die het prettig maken om met kinderen naar buiten te gaan. Voor een koffietje, een snelle boodschap of een korte ronde langs de winkels is het Willem van Noortplein een logisch ankerpunt, met onder meer een grote supermarkt en kleine zaken die de buurt al jaren bedienen. In de omgeving zijn scholen en opvangmogelijkheden aanwezig, wat goed past bij jonge gezinnen en kinderen die al wat zelfstandiger worden. Buiten spelen en bewegen kan in de buurt in verschillende plantsoenen en veldjes, zoals het Willem de Zwijgerplantsoen en het Lubroveld, en ook sportclubs en andere voorzieningen liggen verspreid in Noordoost. Richting de binnenstad fiets je vlot weg via de routes via de Troelstralaan en Merelstraat, of juist langs het Griftpark, terwijl je voor treinverbindingen makkelijk aanhaakt bij Station Utrecht Overvecht. Ook Utrecht Centraal is goed bereikbaar, wat de wijk praktisch maakt voor werk, school en vrije tijd. Hier woon je in een buurt die meebeweegt met het dagelijks ritme van gezin en stad, met ruimte om op adem te komen.

Plattegronden