Pieter Nieuwlandstraat 24

3514 HH Utrecht

€ 425.000,- k.k.
Alle foto's

Kenmerken

  • Vraagprijs€ 425.000,- k.k.
  • StatusVerkocht o.v.
  • TypeBenedenwoning
  • Woonoppervlakte83 m2
  • Bouwjaar1924
  • Inhoud319 m3
  • TuintypenGeen tuin
  • Soorten verwarmingCV ketel
  • LiggingenIn woonwijk

Omschrijving

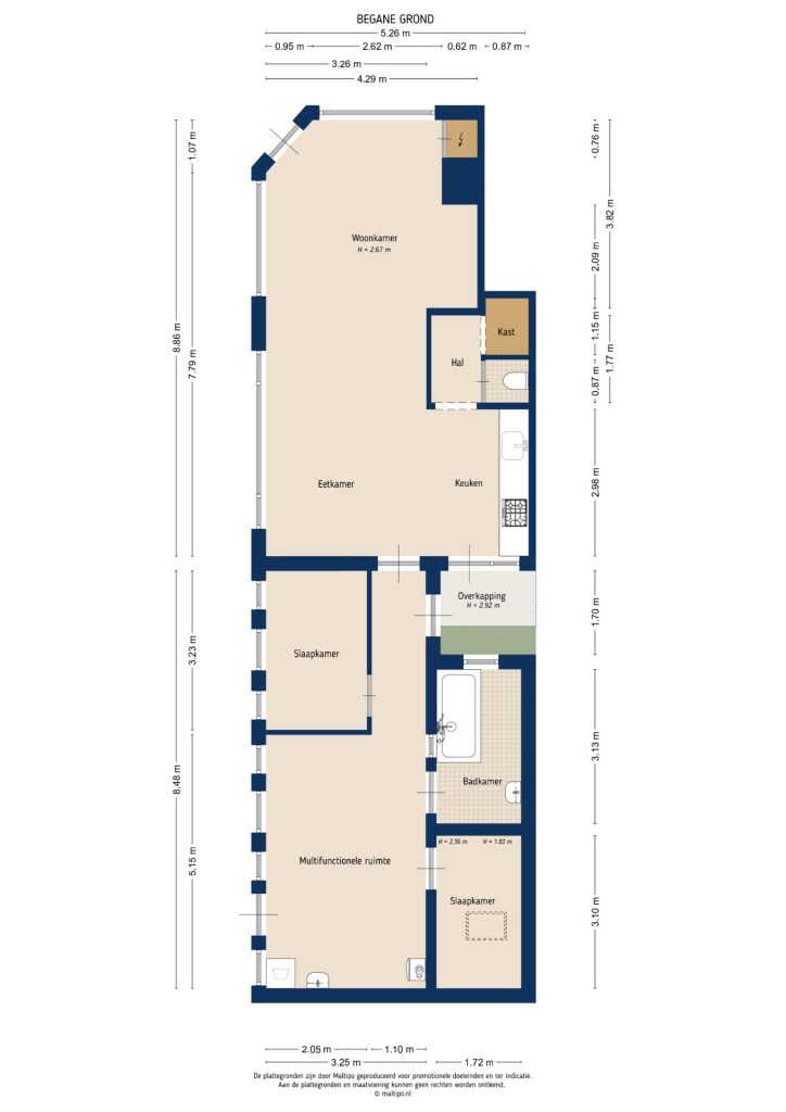
Wonen op een goede locatie in Utrecht én genieten van een instapklare benedenwoning met volop licht. Aan de Pieter Nieuwlandstraat 24 vind je een mega licht hoekappartement van circa 83 m² met twee slaapkamers en daarnaast een grote multifunctionele ruimte. Extra fijn is de tweede ingang, die zich bij deze multifunctionele ruimte bevindt. Ideaal voor extra gemak in het dagelijks leven.

Zodra je binnenstapt, valt meteen op hoe licht en ruimtelijk de woning aanvoelt. Vanaf vroeg in de ochtend tot in de middag schijnt de zon heerlijk de woonkamer in. Extra bijzonder is het glas in lood, dat het binnenvallende licht een mooi gekleurd effect geeft. Dit zorgt voor een warme sfeer en een uitstraling die je niet overal tegenkomt.

Indeling
Je komt direct binnen in de woonkamer. Een fijne eerste indruk, want de ruimte is royaal en heerlijk licht. Hier past met gemak een comfortabele zithoek, waardoor je straks echt een plek hebt om te ontspannen. Met een boek op de bank, een gezellige filmavond of gewoon even genieten van het daglicht in huis.
Aansluitend vind je de eetkamer, met volop ruimte voor een grote tafel. Perfect voor uitgebreid ontbijten in het daglicht of gezellig borrelen en tafelen. De keuken sluit hier mooi op aan en is praktisch ingericht met een 4 pits gasfornuis, afzuigkap, oven en vaatwasser. Alles is aanwezig om direct fijn te kunnen koken en wonen.
De woning beschikt over twee slaapkamers en daarnaast een ruime multifunctionele ruimte. Deze extra kamer is ideaal als werkkamer, hobbyruimte of logeerkamer. In dezelfde ruimte vind je ook de wasmachineaansluiting en de opstelling van de cv ketel. Vanuit deze multifunctionele ruimte is er bovendien een tweede ingang naar buiten, wat deze woning extra praktisch maakt.

De badkamer is uitgevoerd met een ligbad met douche, een wastafelmeubel en een designradiator.

Buitenruimte
Bij de woning hoort een klein plaatsje dat deels is overkapt. Daarnaast heb je aan de voorzijde een brede stoep, waar je heel makkelijk een gezellige buitenplek kunt creëren met een leuk zitje. Extra fijn. Op de stoep heb je vrijwel de hele dag zon, waardoor je hier al snel een favoriete plek maakt om even buiten te zitten.

Extra informatie
• Mega licht hoek appartement
• Tweede ingang aanwezig
• Oplevering in overleg

Zie jij jezelf hier al wonen? Plan snel een bezichtiging. We laten je deze instapklare en sfeervolle benedenwoning graag in het echt ervaren!

Wijkinformatie – Tuinwijk-Oost
Tuinwijk-Oost is een rustige en karaktervolle buurt in Utrecht Noordoost, waar starters en stellen zich makkelijk thuis voelen door de fijne mix van stadse levendigheid en ontspannen straten. In de omgeving wisselen brede lanen en kleinere woonstraten elkaar af, met veel vertrouwde adressen die je al snel in je dagelijkse ritme opneemt. Voor een frisse wandeling of een moment buiten is het Griftpark heel dichtbij, een plek waar je net zo makkelijk gaat hardlopen als even op een bankje neerstrijkt met een koffie. Om de hoek ligt het Willem van Noortplein als praktisch hart van de buurt, met supermarkten en winkels voor je dagelijkse boodschappen en met restaurant Badhuis als bekende plek om af te spreken voor lunch of diner. Wie graag iets uitgebreider shopt of op zoek is naar speciaalzaken, vindt in de omgeving meerdere winkelstraten die vanzelf op de route liggen, en ook winkelcentrum De Gaard is een logische optie voor een breder aanbod. De wijk voelt prettig verbonden met de rest van de stad, met goede busverbindingen richting het centrum en een makkelijke aansluiting op de grotere uitvalswegen. Het dichtstbijzijnde NS station is Utrecht Overvecht, terwijl ook Utrecht Centraal goed bereikbaar is voor wie regelmatig verder reist. Zo woon je hier in een buurt die rustig aanvoelt, maar waar je zonder moeite de stad opzoekt wanneer je daar zin in hebt.

Plattegronden