P.C. Borstraat 3

3515 XW Utrecht

€ 500.000,- k.k.
Alle foto's

Kenmerken

  • Vraagprijs€ 500.000,- k.k.
  • StatusVerkocht
  • TypeBenedenwoning
  • Woonoppervlakte73 m2
  • Bouwjaar1932
  • Inhoud288 m3
  • TuintypenAchtertuin
  • PositieZuidoost
  • VoorzieningenGlasvezel kabel
  • Soorten verwarmingVloerverwarming geheel, Warmtepomp

Omschrijving

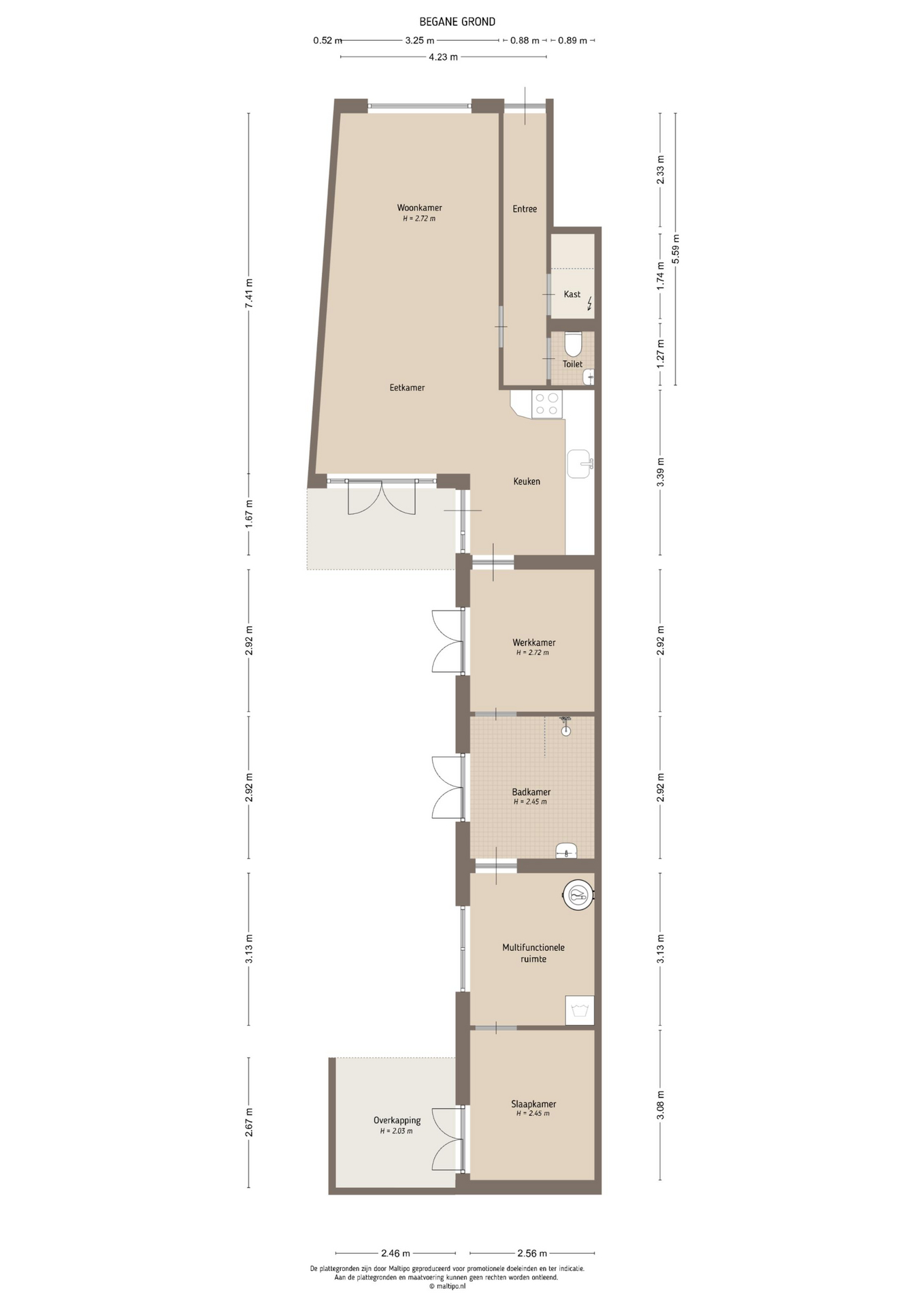
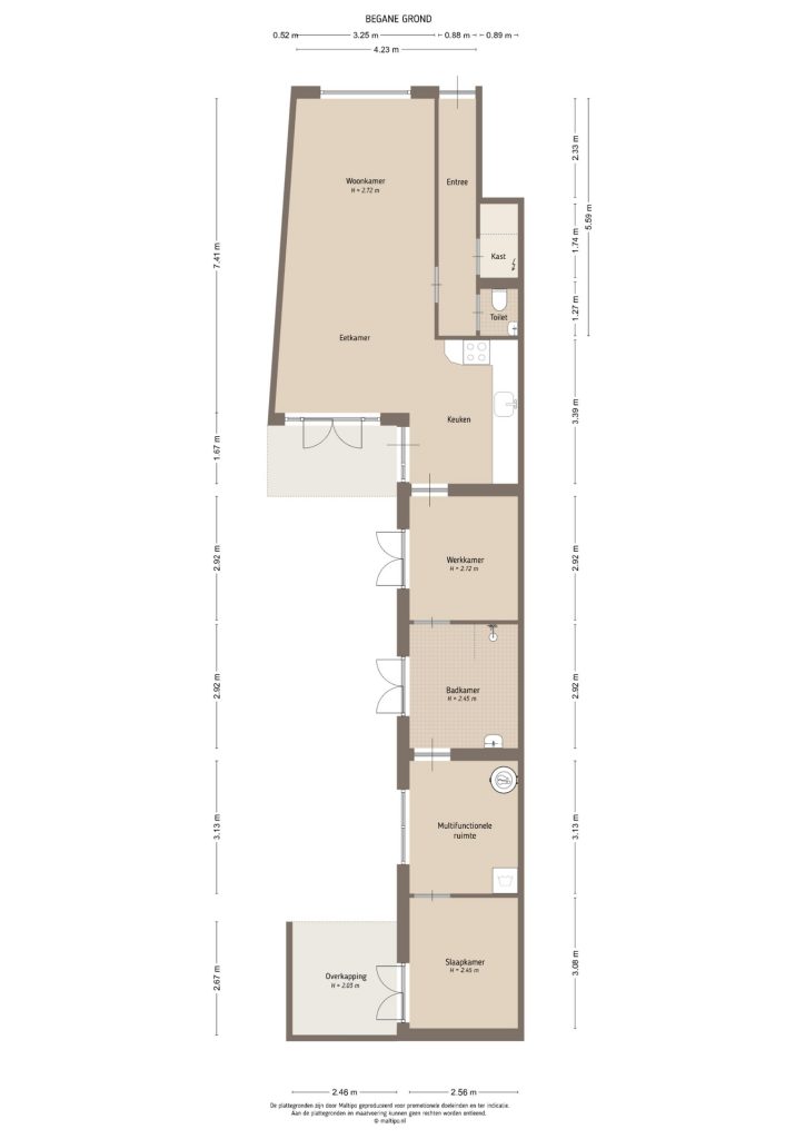
Heerlijk tuin gericht wonen met karakter én comfort. Deze stijlvolle benedenwoning combineert sfeer met modern gemak en een zonnige tuin op het zuidoosten waar binnen en buiten naadloos in elkaar overlopen.

Welkom aan de P.C. Borstraat 3 in Utrecht. Deze levensloopbestendige woning op de begane grond straalt karakter uit met klassieke paneeldeuren en glas in lood boven de voordeur. Tegelijk geniet je hier van hedendaags wooncomfort, energielabel A, een volledig gasloze installatie én comfortabele vloerverwarming door de hele woning. Instapklaar, duurzaam en verrassend veelzijdig.

Waarom je dit huis niet mag missen
De doorzonwoonkamer is heerlijk licht en voelt direct ruim aan. Dankzij de grote raampartijen aan beide zijden geniet je hier de hele dag van natuurlijk licht. De open keuken sluit naadloos aan op het eetgedeelte, waardoor een fijne en gezellige leefruimte ontstaat. Tijdens het koken blijf je in contact met de rest van de leefruimte. De keuken is modern uitgevoerd en voorzien van een combi oven magnetron, koelkast, vriezer en een 4 pits inductiekookplaat met geïntegreerde afzuiging.

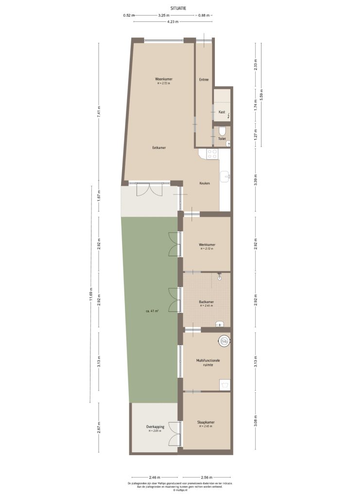
Wat deze woning écht bijzonder maakt, is de sterke verbinding met de tuin. Vanuit alle kamers heb je direct toegang tot buiten. De woonkamer, keuken, werkkamer, badkamer, tussenkamer én de slaapkamer staan allemaal in directe verbinding met de tuin. Het leven binnen en buiten gaat moeiteloos in elkaar over.

De werkkamer is ideaal als thuiswerkplek of logeerkamer. De badkamer is voorzien van een douche en wastafelmeubel en voelt dankzij de directe tuinverbinding extra licht en fris aan. Aansluitend bereik je de praktische tussenkamer die nu in gebruik is als wasruimte.

Helemaal achterin ligt de ruime slaapkamer met toegang tot de veranda. Word wakker, stap zo naar buiten en geniet van een kop koffie in de ochtendzon.

De tuin zelf is verzorgd en groen aangelegd met borders en meerdere fijne zitplekken. Direct aan het eetgedeelte bevindt zich een kleine overkapping, een gezellige plek om beschut buiten te zitten. Achter in de tuin vind je de veranda, een heerlijke plek om lange zomeravonden door te brengen.

Extra informatie
• Levensloopbestendig, alles gelijkvloers
• Volledig gasloos
• Voorzien van zonnepanelen
• Vloerverwarming in de gehele woning
• Energielabel A

Nieuwsgierig geworden?
Zie jij jezelf hier al wonen, met de tuin als verlengstuk van je leefruimte? Plan snel een bezichtiging en ervaar zelf hoe comfortabel en compleet deze benedenwoning is. We laten je dit fijne huis graag zien.

Wijkinformatie – Tuinwijk-West.
Tuinwijk-West is een rustige en sfeervolle buurt in Utrecht Noordoost, geliefd bij starters, koppels en jonge gezinnen. De P.C. Borstraat ligt op een prettige locatie, met het groene Major Bossartplantsoen als directe buur. Een plek waar je kunt wandelen, spelen of gewoon even op adem komt. Op de hoek ligt het levendige Willem van Noortplein, met een Albert Heijn voor de dagelijkse boodschappen en restaurant Badhuis, een populaire plek in de buurt om te lunchen of te dineren.
De wijk biedt een ontspannen woonomgeving met volop stedelijk gemak. In de directe omgeving vind je diverse buurtwinkels, koffiezaken en sportvoorzieningen. Voor grotere boodschappen of een breder winkelaanbod is winkelcentrum De Gaard dichtbij. Ook het Griftpark ligt op korte afstand: een levendig stadspark waar je kunt hardlopen, picknicken of genieten van de natuur midden in de stad. Voor gezinnen zijn er scholen en speeltuinen in de buurt, wat de wijk geschikt maakt voor verschillende levensfasen.
De binnenstad van Utrecht ligt op comfortabele fietsafstand en is daardoor altijd makkelijk bereikbaar voor werk, studie of ontspanning. Ook de bereikbaarheid per OV en auto is gunstig. Station Utrecht Overvecht is het dichtstbijzijnde NS-station en ook Utrecht Centraal is goed bereikbaar. Daarnaast ben je met de auto snel op de ring en uitvalswegen.
Tuinwijk-West combineert rustige straten met het levendige ritme van de stad. Een plek waar je comfortabel woont, met alles wat je nodig hebt in de directe omgeving.

Plattegronden

Kaart

Street View