Jacob van der Borchstraat 24BS

3515 XE Utrecht

€ 500.000,- k.k.
Alle foto's

Kenmerken

  • Vraagprijs€ 500.000,- k.k.
  • StatusVerkocht
  • TypeBovenwoning
  • Woonoppervlakte91 m2
  • Perceel oppervlakte157 m2
  • Bouwjaar1919
  • Inhoud224 m3
  • TuintypenGeen tuin
  • VoorzieningenGlasvezel kabel, Zonnepanelen
  • Soorten verwarmingCV ketel
  • LiggingenAan rustige weg, In woonwijk

Omschrijving

Licht wonen met zonnig terras in Tuinwijk West
Op een fijne plek in Tuinwijk West ligt deze charmante twee laagse bovenwoning, entree- trapopgang naar 1e verdieping en volop lichtinval. Wat meteen opvalt? Het ruime zonneterras aan de achterzijde én het balkon aangrenzende aan de keuken allebei op het westen. Ideaal om na je werk nog even in het zonnetje te zitten.

Een fijne basis met veel potentie
Deze bovenwoning is perfect voor starters. De basis is goed: een lichte woonkamer, ruime keuken, twee slaapkamers en een extra kamer voor thuiswerken of hobby. Het zonnige terras en het balkon zorgen voor een heerlijke buitenbeleving. De woning is eenvoudig afgewerkt, maar biedt volop mogelijkheden om er iets eigens van te maken.

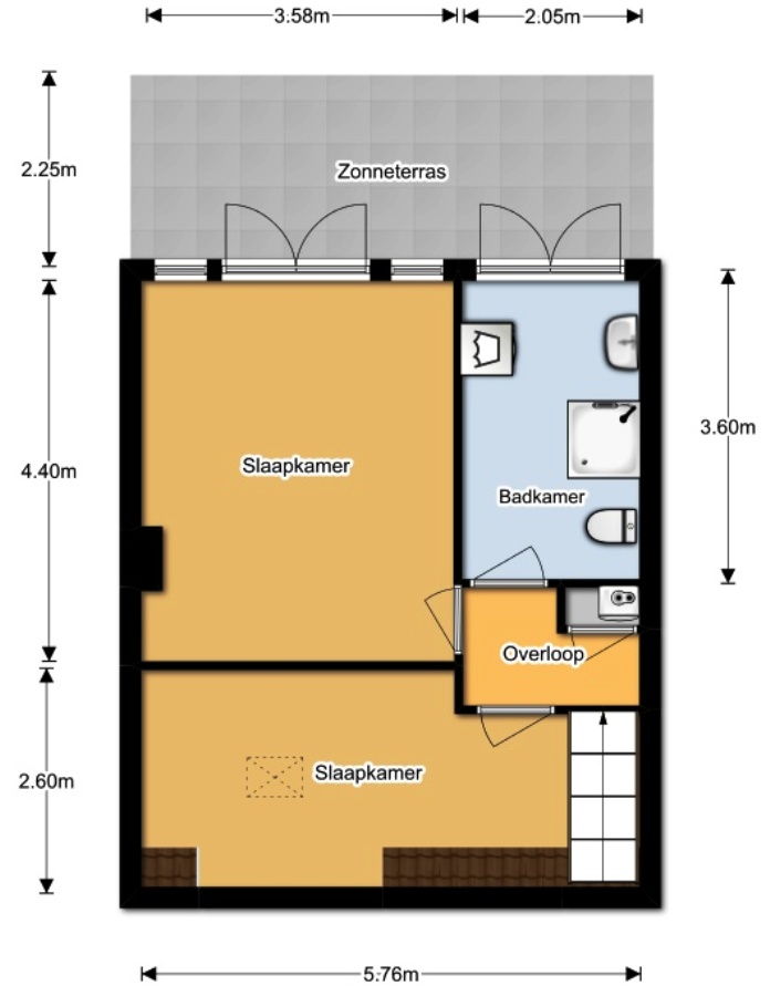
Indeling
Begane grond:
Entree en trapopgang naar de woning.

Eerste verdieping:
Overloop met toegang tot de woonkamer aan de voorzijde. Aan de achterzijde ligt de ruime woonkeuken met diverse appratuur. Vanuit de keuken stap je zo het eerste balkon op, gelegen op het westen. Ideaal voor de middag en avond zon. Verder bevindt zich op deze verdieping nog een aparte kamer die geschikt is als werkkamer of bij de woonkamer gevoegd kan worden Deze verdieping heeft ook een toilet.

Tweede verdieping:
Op de tweede verdieping vind je twee slaapkamers. De grootste ligt aan de achterzijde en heeft dubbele deuren naar het royale zonneterras op het westen. De tweede slaapkamer bevindt zich aan de voorzijde. De badkamer is voorzien van een douche, tweede toilet, wastafelmeubel en de witgoedaansluitingen. Ook vanuit de badkamer heb je toegang tot het zonneterras.

Bijzonderheden

• Niet-zelfbewoningsclausule van toepassing
• Twee zonnige buitenruimtes op het westen
• Buiten goed onderhouden

Kom jij hier straks thuis?
Voel je welkom aan de Jacob van der Borchstraat 24BS. Dit is een woning waar je je direct thuis voelt. Maak snel een afspraak voor een bezichtiging we laten je dit fijne huis graag zien!

Wijkinformatie – Tuinwijk West
Tuinwijk West is een levendige en karaktervolle buurt in Utrecht Noordoost, waar het stadsleven samenkomt met een ontspannen sfeer. De wijk ademt een charmante mix van oude stadsstructuur en jongstedelijke energie. Langs de straten liggen kleinschalige winkels, gezellige cafés en functionele voorzieningen die bijdragen aan een comfortabel dagelijks ritme. Winkelcentrum De Gaard ligt dichtbij en voorziet in alles wat je nodig hebt. De wijk trekt veel jonge bewoners en starters aan, wat zorgt voor een energieke dynamiek en een sociale, toegankelijke omgeving. Met het Griftpark op loopafstand is er ook volop ruimte om te sporten of tot rust te komen in het groen. Openbaar vervoer is uitstekend geregeld: Station Utrecht Overvecht ligt het dichtst in de buurt en ook Utrecht Centraal is goed bereikbaar. De rustige opzet van de buurt, in combinatie met de stedelijke voorzieningen vlakbij, maakt dit een aantrekkelijke uitvalsbasis voor wie graag midden in het Utrechtse leven staat, zonder in te leveren op wooncomfort. Een fijne plek om thuis te komen na een dag in de stad.

Plattegronden