Bremstraat 74

3551 TG Utrecht

€ 450.000,- k.k.
Alle foto's

Kenmerken

  • Vraagprijs€ 450.000,- k.k.
  • StatusBeschikbaar
  • TypeTussenwoning
  • Woonoppervlakte64 m2
  • Perceel oppervlakte58 m2
  • Bouwjaar1915
  • Inhoud262 m3
  • TuintypenAchtertuin
  • PositieZuidwest
  • VoorzieningenZonnepanelen
  • Soorten verwarmingCV ketel

Omschrijving

Een charmante voorgevel uit 1915 en binnen meteen dat fijne gevoel van thuiskomen. Dit is zo’n huis waar je je direct op je gemak voelt.

Instapklaar, licht en verrassend compleet. Je woont hier in een brede woonkamer met dubbele deuren naar de tuin, met boven twee slaapkamers en een zonnig dakterras op het zuidwesten waar je vrijwel de hele dag zon hebt. Binnen zorgen de eiken vloer, de lichte kleurstellingen en de prettige lichtinval voor een fijne, rustige sfeer. Een plek waar je binnenkomt en meteen voelt dat het klopt. Hier maak je zó je eigen thuis van.

Indeling

Begane grond
Je komt binnen via de entree. Boven de voordeur zit glas in lood, een mooi detail dat direct de sfeer van dit huis laat zien. Vanuit de hal loop je door naar de woonkamer. Hier valt meteen op hoe licht het is. De woonkamer is bovendien lekker breed, waardoor je de ruimte makkelijk inricht met een fijne zithoek en een eettafel. In de woonkamer bevindt zich ook de trap naar boven. Via de dubbele deuren naar de tuin stap je zo naar buiten. Zet ze open en binnen en buiten lopen heerlijk in elkaar over.

Via de woonkamer bereik je de keuken. Deze is praktisch ingericht en voorzien van een 5 pits gaskookplaat, afzuigkap, koelkast, vaatwasser en een combi oven met magnetron. Ook vanuit de keuken loop je direct de tuin in.
Aansluitend aan de keuken vind je de badkamer. Deze is compleet uitgerust met een ligbad met douche, een toilet en een wastafelmeubel.

De tuin is knus en gezellig. Precies goed voor een fijne zitplek buiten. In de tuin staat ook een berging, handig voor extra opbergruimte. Op het dak van de berging ligt een sedumdak, en daarnaast zijn er 6 zonnepanelen aanwezig. Ook bevinden zich hier de witgoedaansluiting en de cv ketel.

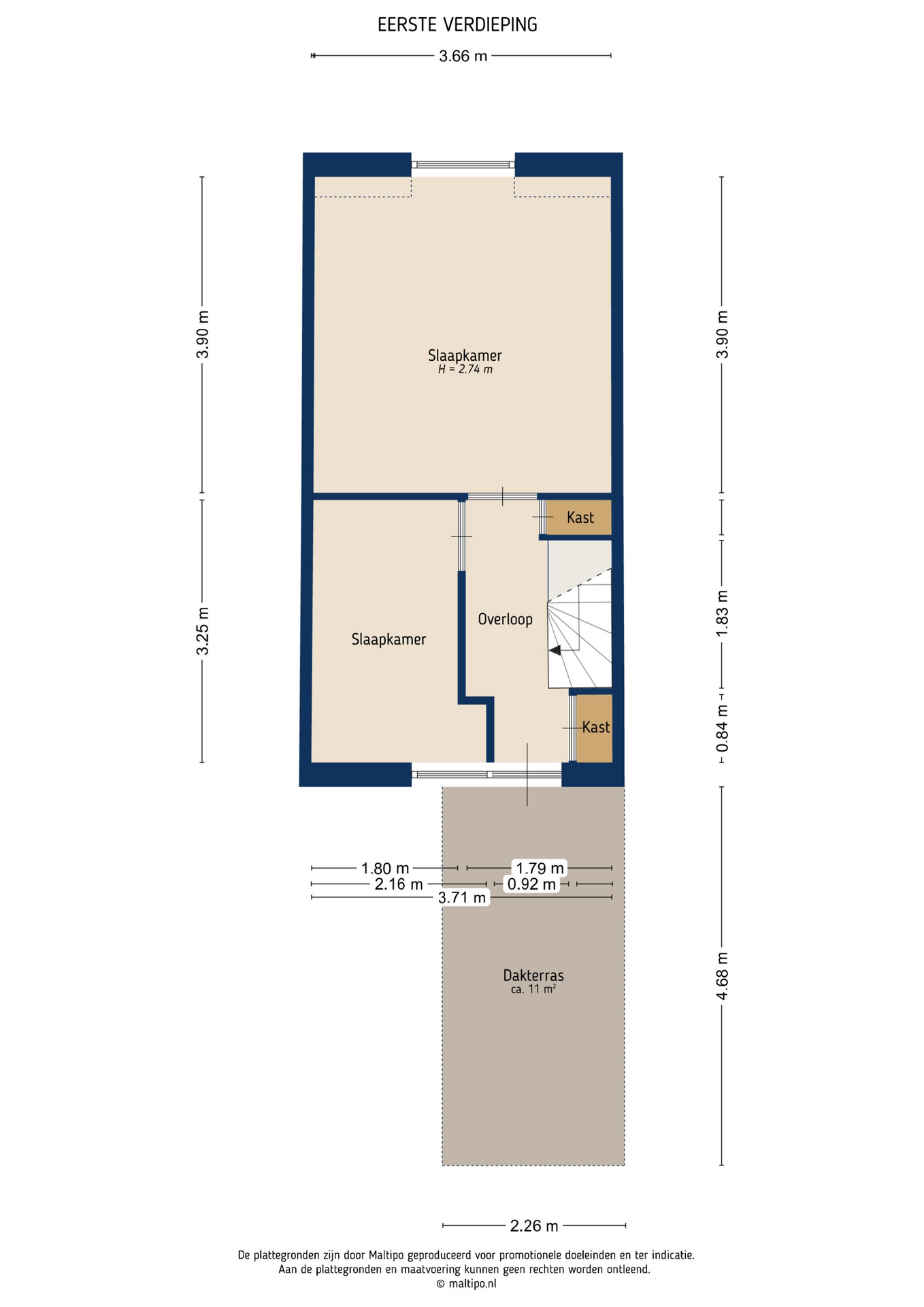
Op de eerste verdieping kom je op een verrassend lichte overloop. Dat komt doordat je hier via een deur toegang hebt tot het dakterras. Deze buitenplek ligt op het zuidwesten en is heerlijk zonnig. Door de ligging heb je hier vrijwel de hele dag zon. Een fantastische plek om in alle rust te zitten met een drankje in de avondzon of met een kop koffie in de ochtendzon.

De slaapkamer aan de voorzijde is ruim en heeft prettig veel lichtinval. De tweede slaapkamer is praktisch en past perfect als kinderkamer, werkkamer of kleedkamer. Ook vind je op deze verdieping twee handige vaste kasten.

Nieuwsgierig geworden? Plan snel een bezichtiging. We laten je Bremstraat 74 graag zien!

Wijkinformatie – Egelantierstraat, Mariëndaalstraat e.o.
In de buurt Egelantierstraat, Mariëndaalstraat e.o. in de Utrechtse wijk Noordwest woon je op een plek waar rustige straten en stedelijke reuring elkaar prettig afwisselen. De Amsterdamsestraatweg ligt dichtbij en brengt dagelijkse levendigheid, met een mix van winkels, koffieplekken en handige adressen voor even snel iets halen of juist ontspannen rondkijken. Voor de boodschappen is winkelcentrum De Plantage een logisch en vertrouwd punt in de buurt, overzichtelijk en praktisch voor alledag. Wie graag groen om zich heen heeft, kan makkelijk uitwijken naar het Julianapark, fijn voor een wandeling, een rondje sporten of gewoon even buiten zijn. Wat deze omgeving extra eigen maakt, is de nabijheid van Wisselspoor, het vernieuwde stuk stad op het voormalige NS terrein. Hier komen industrieel erfgoed en eigentijdse bouw samen in een autoluwe opzet, met een sfeer waarin creativiteit en ontmoeten vanzelf gaan. De Hondekop, het caférestaurant in een oud fabrieksgebouw, is een bekende plek die goed past bij het stoerdere karakter van dit gebied. Tegelijk blijft de basis in de buurt gemoedelijk en overzichtelijk, met een prettig ritme en bewoners die de wijk echt gebruiken. Station Utrecht Zuilen is het dichtstbijzijnde station en maakt het eenvoudig om de stad en de regio in te bewegen, terwijl ook Utrecht Centraal goed bereikbaar is. Een omgeving met karakter, waar je het stadse leven dichtbij hebt en toch elke dag kunt landen in een rustige buurt.

Plattegronden